€ 299.500,- k.k.
Ruim 3-kamer dubbel bovenhuis van ca. 74 m² woonoppervlak gelegen achter een fraaie monumentale gevel uit 1900. Dit dubbel bovenhuis bevindt zich op een centrale locatie in het geliefde Zeeheldenkwartier, op loopafstand van de levendige Piet Heinstraat met een gevarieerd aanbod aan sfeervolle horeca, boetieks en winkels. Het Zeeheldenkwartier staat daarnaast bekend om zijn gunstige ligging ten opzichte van het centrum, de A12 en diverse internationale organisaties, terwijl ook het strand van Scheveningen binnen fietsafstand bereikbaar is.
Ondanks dat het appartement nog gemoderniseerd zal moeten worden, beschikt het reeds over een gunstig energielabel C.
Indeling:
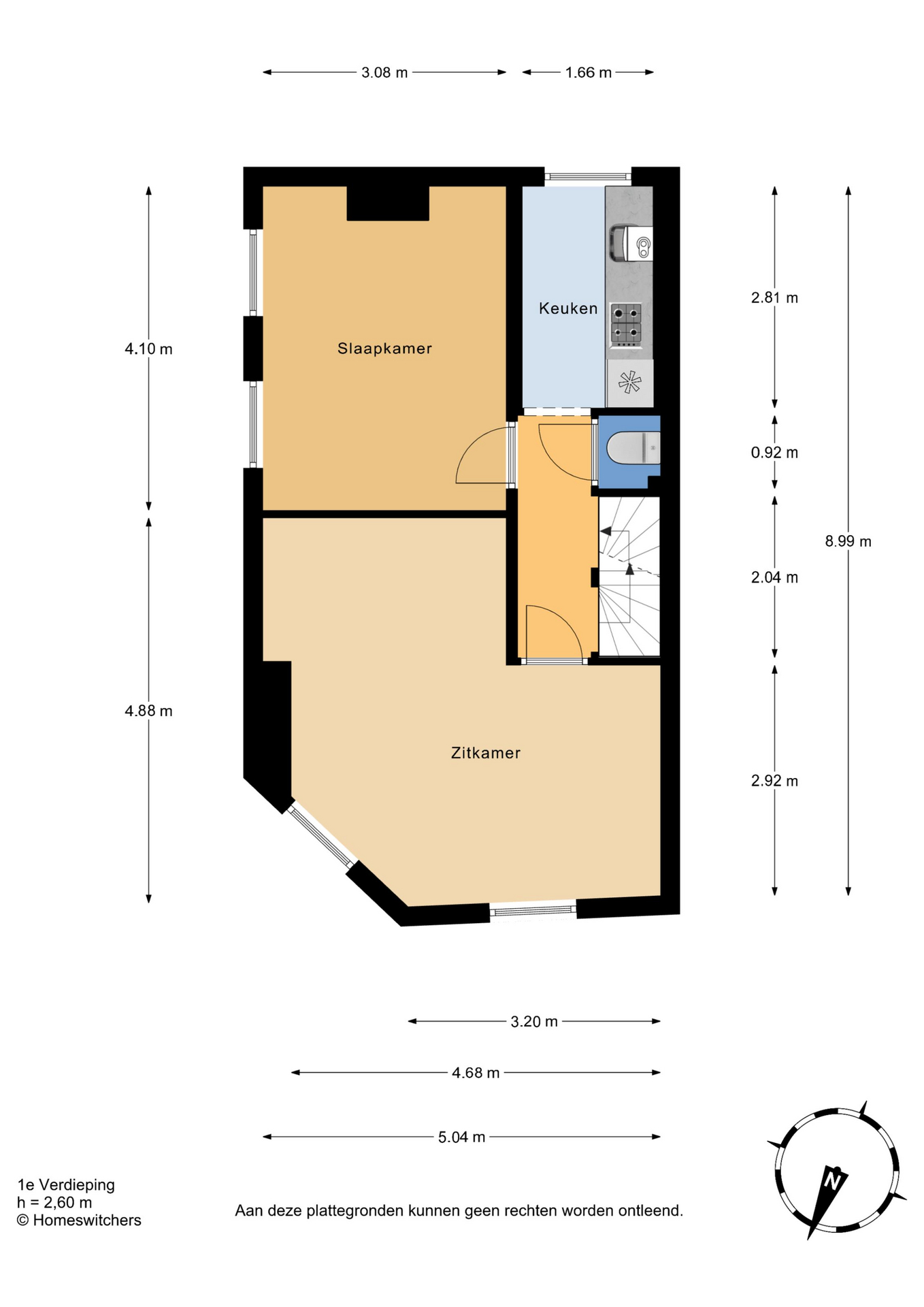
Eigen entree op straatniveau, trap naar de eerste etage, overloop. Toegang tot de L-vormige zitkamer aan de voorzijde, die dankzij de grote raampartijen geniet van veel lichtinval. Slaapkamer aan de achterzijde, evenals de tussenliggende keuken. Toilet in de hal. Trap naar de tweede etage met een ruime overloop, die toegang biedt tot de badkamer en de tweede, achtergelegen slaapkamer. Aansluiting voor de wasmachine op de overloop.
Aanvullende informatie:
– ’s-Gravenhage, sectie O nummer 8471 A2
– Eigen grond
– Bouwjaar 1900
– Energielabel C
– Gemeentelijk beschermd stadsgezicht
– Volledig voorzien van dubbelglas
– Cv-combiketel Intergas 2007
– Uitmakende het 1/2e aandeel in de VvE
– VvE in opstartfase
– Algemene verkoopvoorwaarden Plink NVM Garantiemakelaars van toepassing
– Ouderdoms-, niet-bewonings- en materialenclausule van toepassing
– Projectnotaris van toepassing
– Oplevering in overleg, kan indien gewenst snel.
- 74 m2
- 2
Kenmerken Elandstraat 166
Overdracht
| Vraagprijs | € 299.500,- k.k. |
|---|---|
| Aanvaarding | In overleg |
Oppervlaktes en inhoud
| Woonoppervlakte | 74 m2 |
|---|---|
| Inhoud | 277 m3 |
Bouw
| Soort | Bovenwoning |
|---|---|
| Bouwvorm | Bestaande bouw |
| Bouwjaar | 1900 |
| Dak type | Zadeldak |
| Isolatievormen | Dubbelglas |
| Energielabel | C |
Indeling
| Aantal verdiepingen | 1 |
|---|---|
| Aantal kamers | 3 |
| Aantal slaapkamers | 2 |
| Aantal badkamers | 1 |
Maandlasten
Ligging Elandstraat 166
Voorzieningen
- Openbare Basisschool Max Velthuijs 128 m Da Costastraat 40 S-GRAVENHAGE
- De Haagse Hogeschool 2 km Johanna Westerdijkplein 75 S-GRAVENHAGE
- ROC Mondriaan 2 km Leeghwaterplein 72 S-GRAVENHAGE
- De Haagse Hogeschool 2 km Johanna Westerdijkplein 75 S-GRAVENHAGE
- Technische Universiteit Delft 10 km Prometheusplein 1 DELFT
Centraal gelegen informatie over de buurt
Aantal inwoners
In de gemeente
524.882
Leeftijd
in percentages van totaal
Huishoudsamenstelling
in percentages van totaal
63%
20% NL
18%
20% NL
18%
20% NL