Ga naar inhoud

Te koop: appartement Pluvierstraat 457 2583 GX 's-Gravenhage

Plink Garantiemakelaars Den Haag
Neem contact met mij op

Verkocht

€ 349.000,- k.k.

Fijne , lichte en netjes onderhouden 3/4 kamer parterrewoning totaal ca 65 m2 woonoppervlak met heerlijke
vrij gelegen en zonnige achtertuin van ca 51 m2 pal Zuid West met grote stenen schuur met elektra- en wateraansluiting, gelegen op eeuwigdurende afgekochte erfpacht middels obligatoire overeenkomst.

De woning is gelegen in het rustige deel van de straat pal om de hoek van de Duivelandsestraat, op loopafstand van de Bosjes van Poot, het Westduinpark met zijn prachtige Schotse Hooglanders en het Zuiderstrand van Scheveningen met volop surf mogelijkheden.

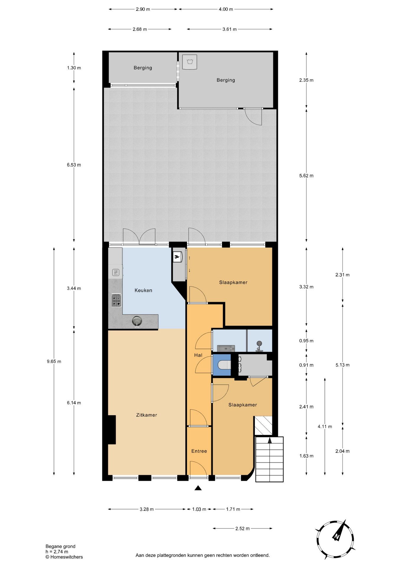
Entree begane grond, vestibule met tochtdeur naar de gang met toilet, lichte doorgebroken kamers en suite met
open woonkeuken met diverse inbouwapparatuur en openslaande deuren naar de heerlijke vrij gelegen zonnige achtertuin met stenen schuur met bergruimte met opstelplaats wasmachine of andere doeleinden zoals bijvoorbeeld een extra kamer, Voorts in de woning vanuit de gang, voorzijkamer met hoogslaper en meterkast, achterzijkamer met tuindeur en vaste kast, nette betegelde badruimte met inloopdouche en wastafel met meubel.

Aanvullende informatie:
– ’s-Gravenhage sectie AO nummer 2924 A-1
– Eeuwigdurend afgekochte erfpacht middels obligatoire overeenkomst
– Bouwjaar 1929
– Woonoppervlak conform BBMI ca 65 m²
– Energielabel D
– 1/3e aandeel in actieve VvE
– Maandelijkse VvE-bijdrage € 125,00 per maand
– Renovatie achtergevel/balkons 2025
– Dak vernieuwd rond 2019
– Nieuwe riolering rond 2012
– Nieuwe groepenkast/ 8 groepen rond 2012
– Collectieve opstalverzekering
– Cv combiketel Remeha Avanta 2010
– Algemene verkoopvoorwaarden Plink NVM Garantiemakelaars van toepassing
– Ouderdoms- en materialenclausule van toepassing
– Projectnotaris Matzinger Eversdijk

  • 65 m2
  • 2

Kenmerken Pluvierstraat 457

Overdracht

Vraagprijs€ 349.000,- k.k.
AanvaardingIn overleg

Oppervlaktes en inhoud

Woonoppervlakte65 m2
Inhoud245 m3

Bouw

SoortBenedenwoning
BouwvormBestaande bouw
Bouwjaar1929
Dak typePlat dak
EnergielabelD

Indeling

Aantal verdiepingen1
Aantal kamers3
Aantal slaapkamers2
Aantal badkamers1

Maandlasten

Ligging Pluvierstraat 457

Voorzieningen

Centraal gelegen informatie over de buurt

Aantal inwoners

In de gemeente

524.882

Leeftijd

in percentages van totaal

Huishoudsamenstelling

in percentages van totaal

42%

20% NL

22%

20% NL

36%

20% NL

Vergelijkbaar woningaanbod