Ga naar inhoud

Te koop: woonhuis Ten Hovestraat 50 2582 RM 's-Gravenhage

Plink Garantiemakelaars Den Haag
Neem contact met mij op

Verkocht

€ 1.100.000,- k.k.

Karakteristiek, goed onderhouden, 9 kamer herenhuis totaal ca. 225 m² woonoppervlak, voorzien van nog vele originele stijldetails, voor- en heerlijke zonnige ca 8 meter diepe achtertuin pal Zuid Oost met houten schuur, gelegen in rustige straat in het mooiste gedeelte van het Statenkwartier op ideale locatie midden in de Internationale zone in de directe nabijheid van “Franse” en “Duitse” school, winkels van de “Fred”, openbaar vervoer en uitvalswegen.

Dit stijlvolle in 1917 gebouwde pand verkeert in nette staat van onderhoud, doch verdient het om naar wens van de nieuwe eigenaar te worden gemoderniseerd. Het beschikt over een heerlijke lichte kamers en suite met openslaande deuren naar voor- en achtertuin, keuken, 7 slaapkamers, badkamer, 3 toiletten, en een achterbalkon.

Voortuin, entree, vestibule met origineel betegelde lambrisering, ornamenten wanden en plafond, meterkast, maremeren vloer en tochtseparatie met fraai glas in lood, gang met plavuizen vloer en
origineel plafond, ruim toilet met fontein, diepe trapkast, ruime woonkeuken met rvs spoelbak en kunststof aanrecht, wasmachineaansluiting, Cv- combi ketel, plavuizen vloer en tuindeur naar heerlijke zonnige besloten achtertuin pal Zuid Oost met houten schuur , terras en borders.
Ruime kamers en suite met originele kastenseparatie met 4 vaste kasten, ornamenten plafonds, parketvloer in de achterkamer, schouw en openslaande deuren naar voor- en achtertuin.

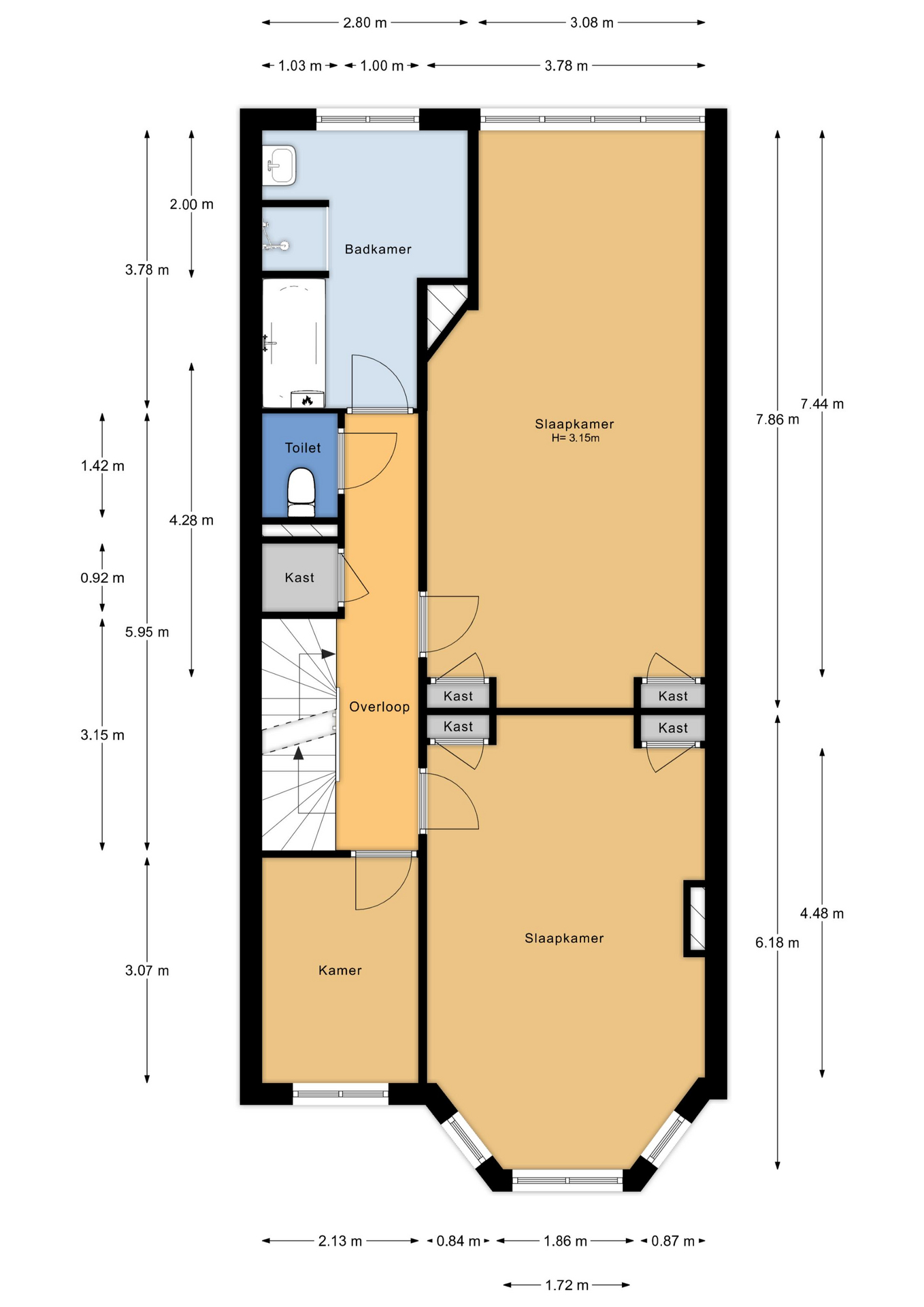
Trap naar 1e etage, overloop met diepe vaste kast, ruim toilet, ruime badkamer met ligbad, aparte douche, geiser, vaste wastafel en plavuizen vloer, 2e kamers en suite met originele kastenseparatie, schuifdeuren en 4 vaste kasten, parketvloer en marmeren schouw achter, 2e schouw aan de voorzijde, ornamenten plafonds, en erker met glas in lood bovenlichten, voorzijkamer.

Trap naar 2e etage, lichte overloop met groot daklicht, ruim toilet, grote voorkamer met ornamenten plafond, schouw vaste kast en deur naar voorbalkon, voorzijkamer, ruime tussenzolder met mogelijkheid van dakluik, grote achterkamer met schouw, vaste kast en openslaande deuren naar enorm achterterras over de volle breedte pal Zuid Oost, achterzijkaner eveneens met terrasdeur.

Aanvullende informatie:
– ‘s-Gravenhage sectie AK nummer 5681
– Groot 159 centiare
– Eigen grond
– Bouwjaar 1917
– Rijksbeschermd stadsgezicht “Statenkwartier”
– Woonoppervlak conform BBMI 225 m2
– CV-combiketel Nefit Ecomline HR
– Gedeeltelijk voorzien van dubbele beglazing
– Energielabel D t/m 07/11/2034
– Ouderdoms-, materialen- en niet bewoningsclausule van toepassing
– Oplevering in overleg
– Algemene verkoopvoorwaarden Plink Garantiemakelaars van toepassing
– Project notaris Post van toepassing

  • 225 m2
  • 159 m2
  • 7

Kenmerken Ten Hovestraat 50

Overdracht

Vraagprijs€ 1.100.000,- k.k.
AanvaardingIn overleg

Oppervlaktes en inhoud

Perceel oppervlakte159 m2
Woonoppervlakte225 m2
Inhoud878 m3

Bouw

SoortHerenhuis
BouwvormBestaande bouw
Bouwjaar1917
Dak typePlat dak
IsolatievormenGedeeltelijk dubbelglas
EnergielabelD

Indeling

Aantal verdiepingen3
Aantal kamers9
Aantal slaapkamers7
Aantal badkamers1

Maandlasten

Ligging Ten Hovestraat 50

Voorzieningen

Centraal gelegen informatie over de buurt

Aantal inwoners

In de gemeente

524.882

Leeftijd

in percentages van totaal

Huishoudsamenstelling

in percentages van totaal

45%

20% NL

24%

20% NL

31%

20% NL

Vergelijkbaar woningaanbod