€ 475.000,- k.k.
Karakteristiek 6-kamer dubbel bovenhuis gelegen in een mooie straat van het Geuzenkwartier, zonder directe bebouwing aan de voorzijde en voorzien van ca. 125 m² woonoppervlak, twee achterbalkons, hoge plafonds, hoogwaardige kunststof kozijnen met dubbel glas en uitzonderlijk gunstige lichtinval.
Het pand is gelegen op een absolute toplocatie op loopafstand van het strand, de haven van Scheveningen, de gezellige winkelstraat “de Fred”, internationale organisaties, scholen en openbaar vervoer.
Indeling:
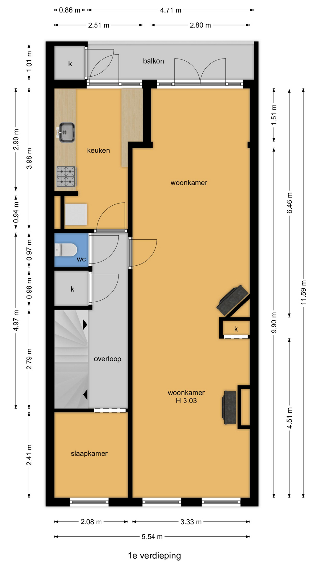
Eigen entree op straatniveau, hal met meterkast, trap naar de eerste etage, overloop voorzien van zijkamer aan de voorzijde, garderobekast en toilet. Vanuit de overloop de riante woonkamer voormalig en suite, veel privacy zonder directe buren aan de voorzijde, grote raampartijen, ca. 3 meter hoge plafonds en openslaande deuren naar achterbalkon over de volle breedte. De dichte keuken is aan de achterzijde gelegen en voorzien van deur naar balkon, 4-pitsgaskookplaat, bakoven en wasemkap. 
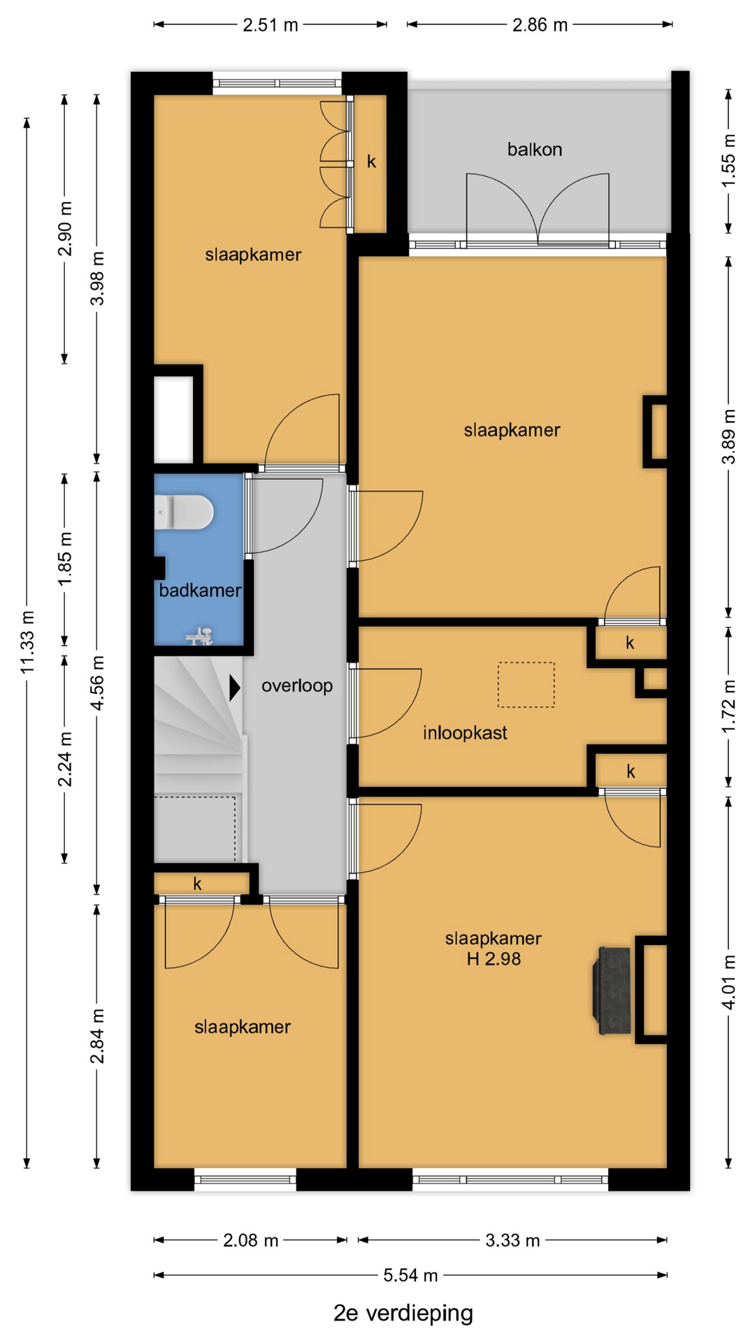
Vanuit de overloop de trap naar de tweede etage voorzien van toilet-/douchecombinatie, zijkamer aan de voorzijde, riante slaapkamer aan de voorzijde met vrij uitzicht en vaste kast, tussengelegen inloopkast, riante zijkamer aan de achterzijde met vaste kast en vijfde grote slaapkamer met openslaande deuren naar tweede balkon.
Aanvullende informatie;
– ‘s-Gravenhage sectie AK nummer 9586 A-2
– Eigen grond
– Bouwjaar 1913
– Rijks Beschermd Stadsgezicht Statenkwartier
– 1/6e aandeel in actieve VvE
– Maandelijkse VvE bijdrage € 100,-
– Woonoppervlak conform NVM meetinstructie 137,2 m2
– Energielabel F (vanwege gaskachels, kozijnen voorzien van dubbel glas)
– Ouderdoms- en materialenclausule van toepassing
– Algemene verkoopvoorwaarden Plink Makelaars van toepassing
– Oplevering in overleg
- 125 m2
- 5
Kenmerken Blois van Treslongstraat 27
Overdracht
| Vraagprijs | € 475.000,- k.k. | 
|---|---|
| Aanvaarding | In overleg | 
Oppervlaktes en inhoud
| Woonoppervlakte | 125 m2 | 
|---|---|
| Inhoud | 457 m3 | 
Bouw
| Soort | Bovenwoning | 
|---|---|
| Bouwvorm | Bestaande bouw | 
| Bouwjaar | 1913 | 
| Dak type | Plat dak | 
| Isolatievormen | Dubbelglas | 
| Energielabel | F | 
Indeling
| Aantal verdiepingen | 2 | 
|---|---|
| Aantal kamers | 7 | 
| Aantal slaapkamers | 5 | 
| Aantal badkamers | 1 | 
Maandlasten
Ligging Blois van Treslongstraat 27
Voorzieningen
Centraal gelegen informatie over de buurt
Aantal inwoners
In de gemeente
524.882
Leeftijd
in percentages van totaal
Huishoudsamenstelling
in percentages van totaal
44%
20% NL
26%
20% NL
30%
20% NL
 
                             
                             
                             
                             
                             
                             
                             
                             
                             
                             
                             
                             
                             
                             
                             
                             
                             
                             
                             
                             
                             
                             
                             
                             
                             
                             
                             
                             
                             
                             
                                 
                                 
                                 
             
             
             
            