€ 375.000,- k.k.
Charmante verhoogde parterre met een schitterend terras van ca. 20 m², berging in de onderbouw en ca. 78 m² verdeeld over een sfeervolle woonkamer, twee riante slaapkamers, half open keuken en modern sanitair. De locatie op de grens van de Vogelwijk en de Bomenbuurt is uitstekend te noemen en in de directe omgeving van het strand, de gezellige Fahrenheitstraat, de Europese school, winkels en openbaar vervoer.
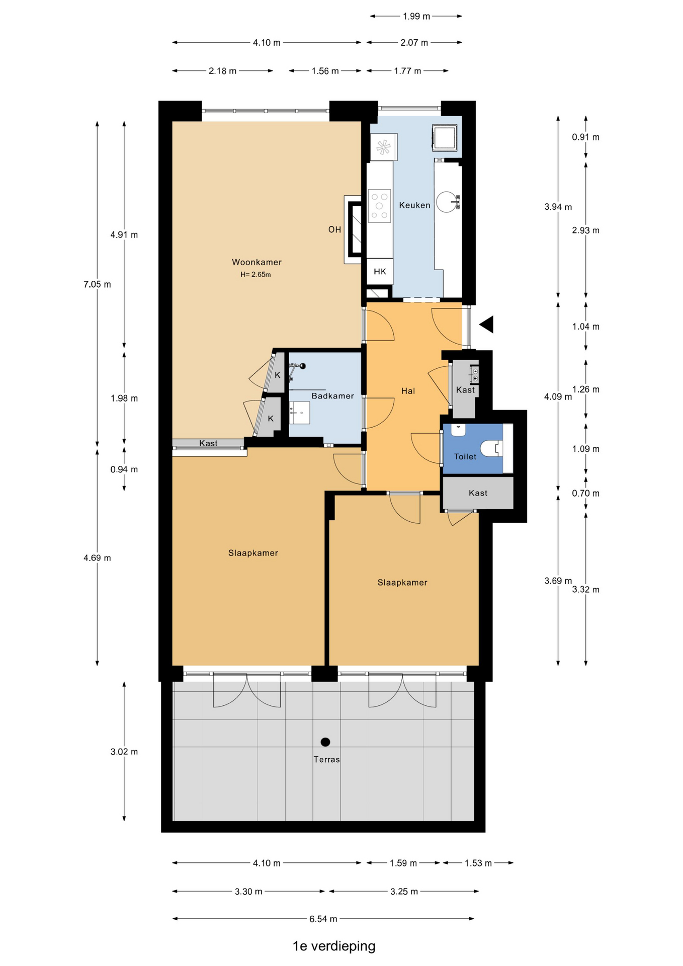
Indeling:
Entree van het appartementencomplex, trap met slechts 5 treden naar de bel-etage, entree appartement, ruime hal met meterkast en toilet voorzien van keurig tegelwerk. Vanuit de hal de woonkamer die dankzij de gunstige ligging op het zuidwesten over een goede lichtinval beschikt. De keuken is voorzien van kastruimte aan beide zijden, 4-pits gaskookplaat, oven, opstelplaats voor wasmachine en technische ruimte met cv-ketel. Aan de achterzijde twee riante slaapkamers waar in beide kamers met gemak een 2-persoons bed en een grote kast geplaats kan worden. De slaapkamers zijn rustig gelegen aan de achterzijde en beschikken over openslaande deuren naar het achterterras over de volle breedte met uitzicht over fraai aangelegde binnentuin. De tussengelegen badkamer is voorzien van modern tegelwerk, inloopdouche met glazen wand, wastafel en handdoekenradiator. 
Aanvullende informatie:
– ’s-Gravenhage sectie AN 5656 A-2
– Bouwjaar 1955
– Energielabel D
– Berging in de onderbouw van ca. 4,4 m²
– Gelegen op erfpachtgrond waarvan het erfpachtrecht afloopt op 31-12-2027
– De canon van € 1,13 per jaar wordt niet geïnd
– 14/244 aandeel in actieve VvE
– Meerjaren onderhoudsplan beschikbaar
– Collectieve opstalverzekering
– Maandelijkse VvE bijdrage € 186,86
–  CV-combiketel Bosch (ouder dan 15 jaar)
– Rondom dubbele beglazing (behoudens klapramen)
– Ouderdoms-, materialen- en niet bewoningsclausule van toepassing
– Algemene verkoopvoorwaarden van toepassing
– Projectnotaris Quadrant
– Oplevering kan indien gewenst snel
- 78 m2
- 2
Kenmerken Goudenregenstraat 311
Overdracht
| Vraagprijs | € 375.000,- k.k. | 
|---|---|
| Aanvaarding | In overleg | 
Oppervlaktes en inhoud
| Woonoppervlakte | 78 m2 | 
|---|---|
| Inhoud | 258 m3 | 
Bouw
| Soort | Benedenwoning | 
|---|---|
| Bouwvorm | Bestaande bouw | 
| Bouwjaar | 1955 | 
| Isolatievormen | Grotendeels dubbelglas | 
| Energielabel | D | 
Indeling
| Aantal verdiepingen | 1 | 
|---|---|
| Aantal kamers | 3 | 
| Aantal slaapkamers | 2 | 
| Aantal badkamers | 1 | 
Maandlasten
Ligging Goudenregenstraat 311
Voorzieningen
Centraal gelegen informatie over de buurt
Aantal inwoners
In de gemeente
524.882
Leeftijd
in percentages van totaal
Huishoudsamenstelling
in percentages van totaal
46%
20% NL
24%
20% NL
30%
20% NL
 
                             
                             
                             
                             
                             
                             
                             
                             
                             
                             
                             
                             
                             
                             
                             
                             
                             
                             
                             
                             
                             
                             
                                 
                                 
                                 
                                 
                                 
                                 
                                 
                                 
                                 
                                 
                                 
                                 
                                 
                                 
                                 
                                 
                                 
                                 
                                 
                                 
                                 
                                 
                                 
                                 
                                     
                                     
                                                             
                             
                             
                             
                             
             
             
             
            