€ 550.000,- k.k.
Karakteristiek 3-laags bovenhuis uit 1890 met een schitterende maatvoering van ca. 165 m² woonoppervlak gelegen achter een monumentale gevel in het populaire Regentessekwartier. De locatie van dit statige bovenhuis is perfect te noemen op de grens met het Zeeheldenkwartier en in de directe omgeving van het Koningsplein, de gezellige Prins Hendrikstraat en de bruisende Piet Heinstraat. Daarnaast staat deze locatie bekend om de gunstige ligging ten opzichte van het Centrum, snelweg A12/A13/A4, internationale organisaties maar ook nog op fietsafstand van het strand van Scheveningen.
Tot voor kort is het object gebruikt als 3 afzonderlijke appartementen.
Indeling:
Entree, trap naar de eerste etage, overloop met toilet en douche, zijkamer aan de voorzijde, schitterende kamers en suite met originele ornamenten plafonds van ca. 3,12 meter hoog, serre aan de achterzijde, keuken aan de achterzijde met eenvoudig keukenblok.
Vanuit de overloop de trap naar de tweede etage, overloop met deur naar de voorkamer met ornamenten plafonds en zijkamer met uitzicht over de Koningin Emmakade, slaapkamer aan de achterzijde met openslaande deuren naar achterterras pal zuidwest. Verder aan de achterzijde nog een aparte keuken met eenvoudig keukenblok. Deze woonlaag is eveneens voorzien van een badkamer met douche en toilet.
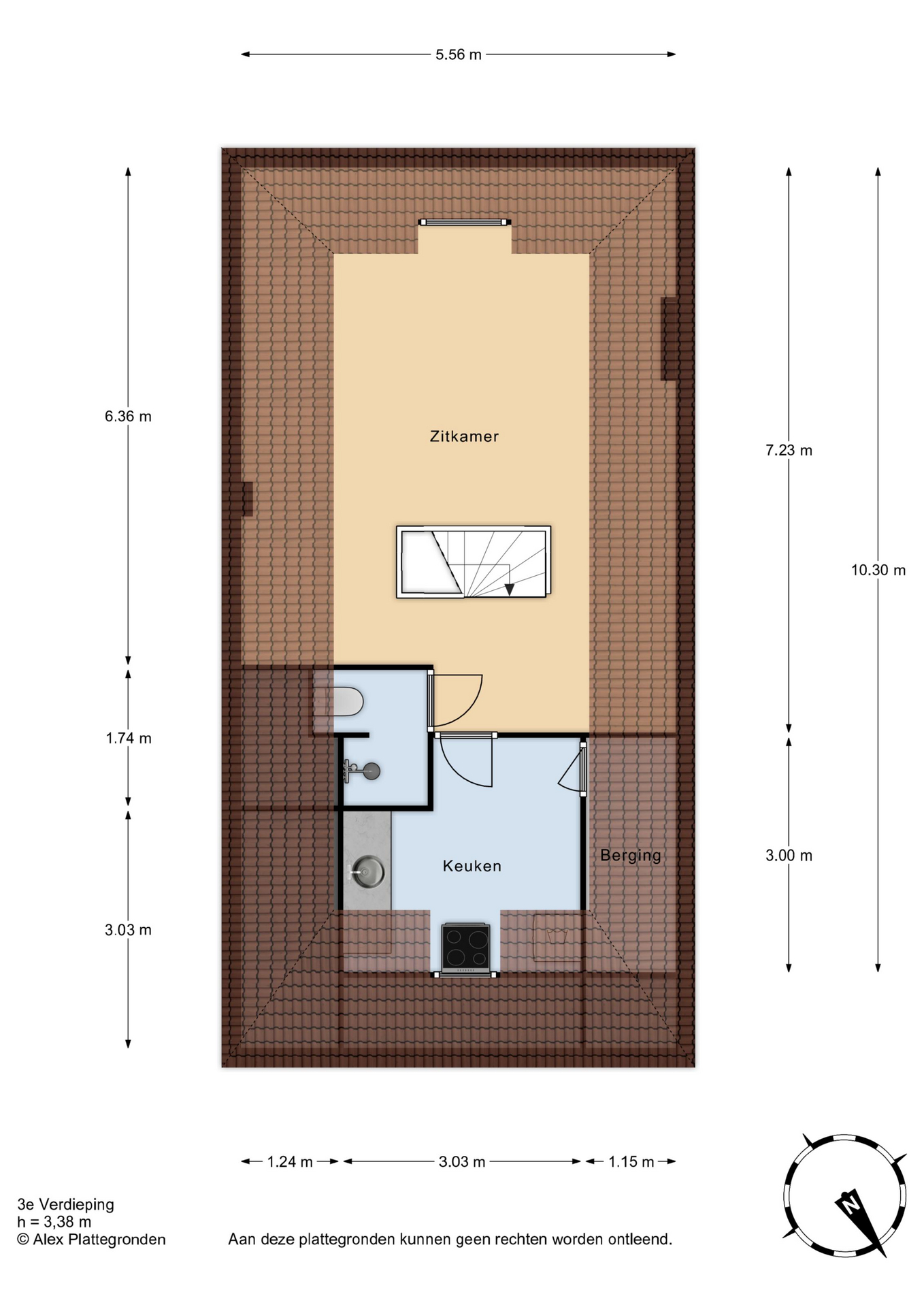
De derde etage betreft een kapetage met kamer over de volle breedte, keuken aan de achterzijde met eenvoudig keukenblok en badkamer voorzien van toilet en douche.
Aanvullende informatie:
– ’s-Gravenhage sectie W nummer 3455 A2 en A3
– Twee kadastrale nummers
– Drie huisnummers 87, 87a, 87b
– Eigen grond
– Bouwjaar 1890
– Energielabel C / D / F
– Gemeentelijk beschermd stadsgezicht
– Gedeeltelijk voorzien van dubbel glas
– Cv-combiketel Intergas 2019
– 3/10e en 4/10e aandeel in de gemeenschap
– Bijdrage VvE € 182,30 per maand
– Professioneel VvE beheer
– Collectieve opstalverzekering in aanvraag
– Ouderdoms-, niet bewonings- en materialenclausule van toepassing
– Algemene verkoopvoorwaarden Plink NVM Garantiemakelaars van toepassing
– Projectnotaris Burgemeestre & partners
– Oplevering in overleg
- 165 m2
- 6
Kenmerken Koningin Emmakade 87
Overdracht
| Vraagprijs | € 550.000,- k.k. |
|---|---|
| Aanvaarding | In overleg |
Oppervlaktes en inhoud
| Woonoppervlakte | 165 m2 |
|---|---|
| Inhoud | 583 m3 |
Bouw
| Soort | Bovenwoning |
|---|---|
| Bouwvorm | Bestaande bouw |
| Bouwjaar | 1890 |
| Dak type | Zadeldak |
| Isolatievormen | Gedeeltelijk dubbelglas |
| Energielabel | C |
Indeling
| Aantal verdiepingen | 3 |
|---|---|
| Aantal kamers | 8 |
| Aantal slaapkamers | 6 |
| Aantal badkamers | 3 |
Maandlasten
Ligging Koningin Emmakade 87
Voorzieningen
- Openbare Basisschool Max Velthuijs 289 m Da Costastraat 40 'S-GRAVENHAGE
- De Haagse Hogeschool 3 km Johanna Westerdijkplein 75 S-GRAVENHAGE
- ROC Mondriaan 2 km Leeghwaterplein 72 S-GRAVENHAGE
- De Haagse Hogeschool 3 km Johanna Westerdijkplein 75 S-GRAVENHAGE
- Technische Universiteit Delft 10 km Prometheusplein 1 DELFT
Centraal gelegen informatie over de buurt
Aantal inwoners
In de gemeente
524.882