€ 450.000,- k.k.
Blanco canvas. Zeer ruim dubbel bovenhuis ca. 141m2 welke geheel naar eigen smaak gerenoveerd kan worden achter een monumentale gevel in hartje Centrum.
Een bijzonder licht en ruim appartement waar vele originele details in behouden zijn gebleven.
De locatie van dit bijzondere object is perfect te noemen en in de directe omgeving van het Plein, Haagse Bos, restaurants en uitgaansgelegenheden. Daarnaast staat deze locatie bekend om de gunstige ligging ten opzichte van het Den Haag CS, snelweg A12/A13/A4, Ministeries en Internationale Organisaties.
Indeling:
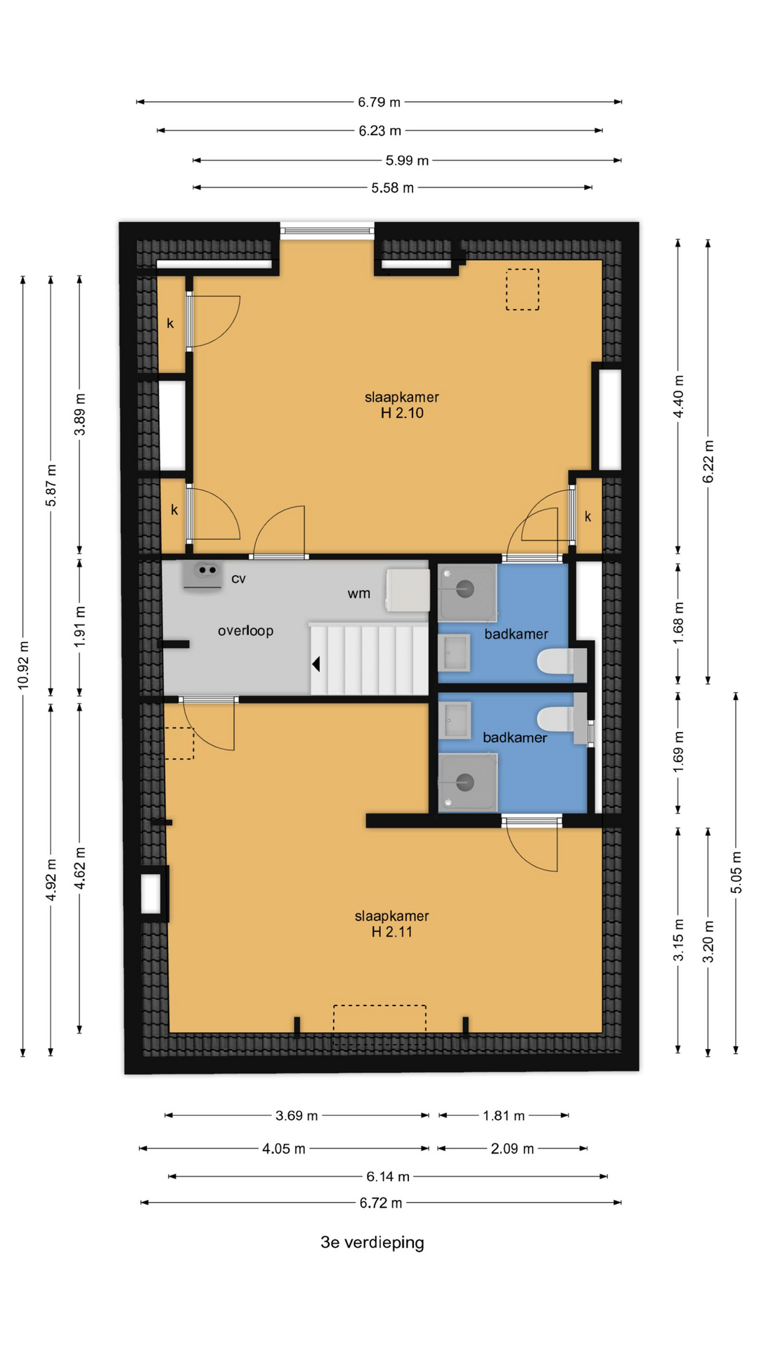
Entree van het complex op straatniveau, trap naar de 1e etage, entree appartement met hal, de trap naar de 2e etage met originele trapspijlen, trapleuningen en “bloemvormig” raam. Deur naar de woonkamer met hoog plafond en gunstige lichtval, klassieke schouw, ornamenten plafonds en uitzicht op de Korte Poten. Doorgebroken voor zijkamer. De zeer lichte keuken ligt aan de achterzijde van de woning. De voormalige eetkamer beschikt eveneens over een fraai ornamenten plafond. Wc met fonteintje. Trap naar de top etage, ruime overloop met de opstelplaats voor de cv ketel en de wasmachine. Riante slaapkamer aan de achterzijde met veel opbergruimte in de vaste kasten. De 1e moderne badkamer is voorzien van fraai tegelwerk, wandcloset, wastafel met meubel, spiegel, een ruime inloopdouche en een handdoekradiator. De 2e zeer ruime slaapkamer ligt aan de voorzijde met tevens een moderne badkamer en suite met fraai tegelwerk, wandcloset, wastafel met meubel, spiegel, een ruime inloopdouche en een handdoekradiator. Een unieke kans om uw droomhuis te realiseren op een fantastische locatie.
Aanvullende informatie:
– ‘s-Gravenhage sectie F complex 2565 A-3
– Bouwjaar 1911
– Eigen grond
– Rijks beschermd stadsgezicht
– 15/30e aandeel in de gemeenschap
– Maandelijkse VvE bijdrage € 250,80
– Verrekening water middels tussenmeter voorschot € 20,- per maand
– Eigen cv-combiketel
– Ouderdoms-, niet bewonings- en materialenclausule
– Algemene verkoopvoorwaarden Plink NVM Garantiemakelaars van toepassing
– Projectnotaris Quadrant
– Oplevering in overleg
- 142 m2
- 72 m2
- 3
Kenmerken Korte Poten 42B
Overdracht
| Vraagprijs | € 450.000,- k.k. | 
|---|---|
| Aanvaarding | In overleg | 
Oppervlaktes en inhoud
| Perceel oppervlakte | 72 m2 | 
|---|---|
| Woonoppervlakte | 142 m2 | 
| Inhoud | 491 m3 | 
Bouw
| Soort | Bovenwoning | 
|---|---|
| Bouwvorm | Bestaande bouw | 
| Bouwjaar | 1911 | 
| Energielabel | F | 
Indeling
| Aantal verdiepingen | 2 | 
|---|---|
| Aantal kamers | 4 | 
| Aantal slaapkamers | 3 | 
| Aantal badkamers | 2 | 
Maandlasten
Ligging Korte Poten 42B
Voorzieningen
- Jan V Nassauschool voor Protestants Christelijk Basisonderwijs 850 m Zaanstraat 25 'S-GRAVENHAGE
- Hogeschool der Kunsten Den Haag 946 m Juliana van Stolberglaan 1 S-GRAVENHAGE
- ROC Mondriaan 1 km Koningin Marialaan 9 S-GRAVENHAGE
- Hogeschool der Kunsten Den Haag 946 m Juliana van Stolberglaan 1 S-GRAVENHAGE
- Technische Universiteit Delft 9 km Prometheusplein 1 DELFT
Centraal gelegen informatie over de buurt
Aantal inwoners
In de gemeente
524.882
 
                             
                             
                             
                             
                             
                             
                             
                             
                             
                             
                             
                             
                             
                             
                             
                             
                             
                             
                             
                             
                             
                             
                             
                             
                             
                             
                             
                             
                             
                             
                             
                             
                             
                             
                             
                             
                             
                             
                             
                             
                             
                             
                             
                             
                             
                             
                             
                             
                             
                                 
                                 
                                 
                                 
                                 
                                 
                                 
                                 
                                 
                                 
                                 
                                 
                                 
                                 
                                 
                                 
                                 
                                 
                                 
                                 
                                 
                                 
                                 
                                 
                                 
                                 
                                 
                                 
                                 
                                 
                                 
                                 
                                 
                                 
                                 
                                 
                                 
                                 
                                 
                                 
                                 
                                 
                                 
                                 
                                 
                                 
                                 
                                 
                                 
                                 
                                 
                                 
                                     
                                     
                                     
                                                             
                             
                             
                             
                             
             
             
             
            