€ 325.000,- k.k.
Uniek 4 kamer top appartement van totaal ca. 80m² woonoppervlak gelegen in één van de leukste straten van de Heesterbuurt.
Zowel de populaire Fahrenheitstraat als de Weimarstraat zijn op 5 minuten fietsen te bereiken en beschikken over een ruim aanbod aan lokale speciaalzaken, biologische winkels, koffiebarretjes en sfeervolle kleinschalige horecagelegenheden. Met tramlijn 12 ben je zo op het strand en tram 2 is een perfecte verbinding naar de Haagse binnenstad.
2e etage woning Lavendelstraat 18
Woonoppervlak: ca. 80m²
Bijzonderheden: instap klaar, 3 slaapkamers
Buitenruimte: zonnig balkon op het Zuidoosten gelegen
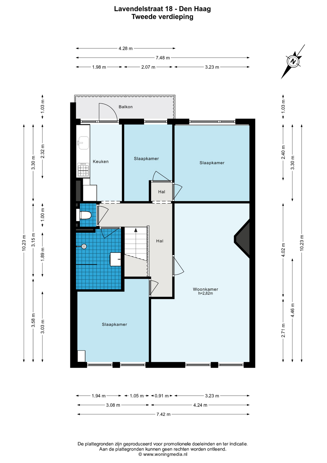
Indeling:
Open portiek, trap naar de 1e etage, entree appartement, veel ruimte naast de trap en de meterkast met uitgebreide elektrische installatie. Brede trap naar de 2e etage, grote lichte overloop met daklicht en toegang tot alle vertrekken.
De gehele woning is voorzien van een keurige laminaat vloer. L-vormige woonkamer met gunstige lichtinval, klassieke schouw en twee grote kunststof ramen met dubbel glas.
Vanuit de hal toegang tot de grote voorzijkamer tevens voorzien van grote ramen en laminaat vloer.
De 2e grote slaapkamer en de tussen gelegen slaapkamer/studeerkamer liggen aan de achterzijde van het appartement. Separaat modern wandcloset met grote witte wandtegels en de opstelplaats van de cv combiketel.
Moderne keuken voorzien van inbouwapparatuur; natuurstenen aanrechtblad, gaskookplaat, koel/vriescombinatie, vaatwasser, rvs afzuigkap, antraciet kleurige tegels en toegang tot het zonnige balkon Zuidoost gelegen.
Ruime moderne badkamer met inloopdouche met glazen wand, wastafelmeubel, wasmachine aansluiting, een spiegel, een handdoekradiator en een daklicht.
Aanvullende informatie:
– ’s-Gravenhage sectie AM 6694 A-3
– Bouwjaar 1926
– Eigen grond
– Energielabel E
– 1/3e aandeel in de gemeenschap
– Bijdrage VvE € 117,- per maand
– Woonoppervlak ca. 80m²
– Ouderdoms-, niet bewonings- en materialenclausule van toepassing
– Algemene verkoopvoorwaarden Plink NVM Garantiemakelaars van toepassing
– Oplevering in overleg
– Project notaris Van de Velde van toepassing
Unique 4-room top apartment spanning approximately 80m² of living space, situated in one of the most charming streets in the Heesterbuurt.
The popular Fahrenheitstraat and Weimarstraat are both within a 5-minute bike ride, offering a diverse range of local specialty shops, organic stores, cozy coffee bars, and delightful small-scale eateries. Convenient tramline 12 swiftly takes you to the beach while tram 2 provides an excellent route to The Hague’s city center.
2nd-floor residence at Lavendelstraat 18
Living space: approx. 80m²
Highlights: move-in ready, 3 bedrooms
Outdoor space: sunny balcony facing Southeast
Layout:
Open vestibule, stairs to the 1st floor, apartment entrance, ample space beside the staircase and the meter cupboard boasting an extensive electrical installation. Wide stairs lead to the 2nd floor, featuring a generously lit large landing with a skylight, providing access to all rooms.
The entire residence boasts a tidy laminate floor. L-shaped living room with favorable natural light, a classic fireplace, and two large double-glazed PVC windows.
From the hallway, access to the spacious front-side room, also equipped with sizable windows and a laminate floor.
The 2nd sizable bedroom and the intermediate bedroom/study room are located at the rear of the apartment. Separate modern wall-mounted toilet with large white wall tiles and the central heating combi boiler installation.
Modern kitchen equipped with built-in appliances; natural stone countertop, gas hob, fridge/freezer combination, dishwasher, stainless steel extractor hood, anthracite-colored tiles, and access to the sunny Southeast-facing balcony.
Ample modern bathroom featuring a walk-in shower with a glass partition, vanity unit, washing machine connection, a mirror, a towel radiator, and a skylight.
Additional Information:
-The Hague section AM 6694 A-3
-Year of construction 1926
-Freehold property
-Energy label E
-1/3rd share in the association
-Contribution to Owners’ Association (VvE) € 117,- per month
-Living space approx. 80m²
-Subject to old age, non-occupancy, and material clauses
-General sales conditions of Plink NVM Garantiemakelaars applicable
-Delivery by mutual agreement
-Project notary: Van de Velde applicable
- 80 m2
- 3
Kenmerken Lavendelstraat 18
Overdracht
| Vraagprijs | € 325.000,- k.k. |
|---|---|
| Aanvaarding | In overleg |
Oppervlaktes en inhoud
| Woonoppervlakte | 80 m2 |
|---|---|
| Inhoud | 273 m3 |
Bouw
| Soort | Portiekwoning |
|---|---|
| Bouwvorm | Bestaande bouw |
| Bouwjaar | 1926 |
| Dak type | Plat dak |
| Isolatievormen | Dubbelglas |
| Energielabel | E |
Indeling
| Aantal verdiepingen | 1 |
|---|---|
| Aantal kamers | 4 |
| Aantal slaapkamers | 3 |
| Aantal badkamers | 1 |
Maandlasten
Ligging Lavendelstraat 18
Voorzieningen
- Ds Dj Karressch Christelijke Basisonderwijs 452 m Naarderstraat 170 'S-GRAVENHAGE
- De Haagse Hogeschool 4 km Johanna Westerdijkplein 75 S-GRAVENHAGE
- ROC Mondriaan 2 km Zuidlarenstraat 6 S-GRAVENHAGE
- De Haagse Hogeschool 4 km Johanna Westerdijkplein 75 S-GRAVENHAGE
- Technische Universiteit Delft 10 km Prometheusplein 1 DELFT
Centraal gelegen informatie over de buurt
Aantal inwoners
In de gemeente
524.882
Leeftijd
in percentages van totaal
Huishoudsamenstelling
in percentages van totaal
52%
20% NL
19%
20% NL
28%
20% NL