€ 225.000,- k.k.
Uniek 2-kamer appartement gerealiseerd in een klassiek 3-laags bovenhuis en gelegen in de gezellige Piet Heinstraat! Deze bovenwoning is gelegen op een sublieme locatie midden in het bruisende Zeeheldenkwartier met een ruim aanbod aan kleinschalige horeca, beauty en lifestyle. Daarnaast staat het Zeeheldenkwartier bekend om de gunstige ligging ten opzichte van het Centrum, snelweg A12, internationale organisaties maar ook nog op fietsafstand van het strand van Scheveningen.
Vanwege de aangebrachte energiebesparende voorzieningen beschikt deze starterswoning over een gunstig energielabel A.
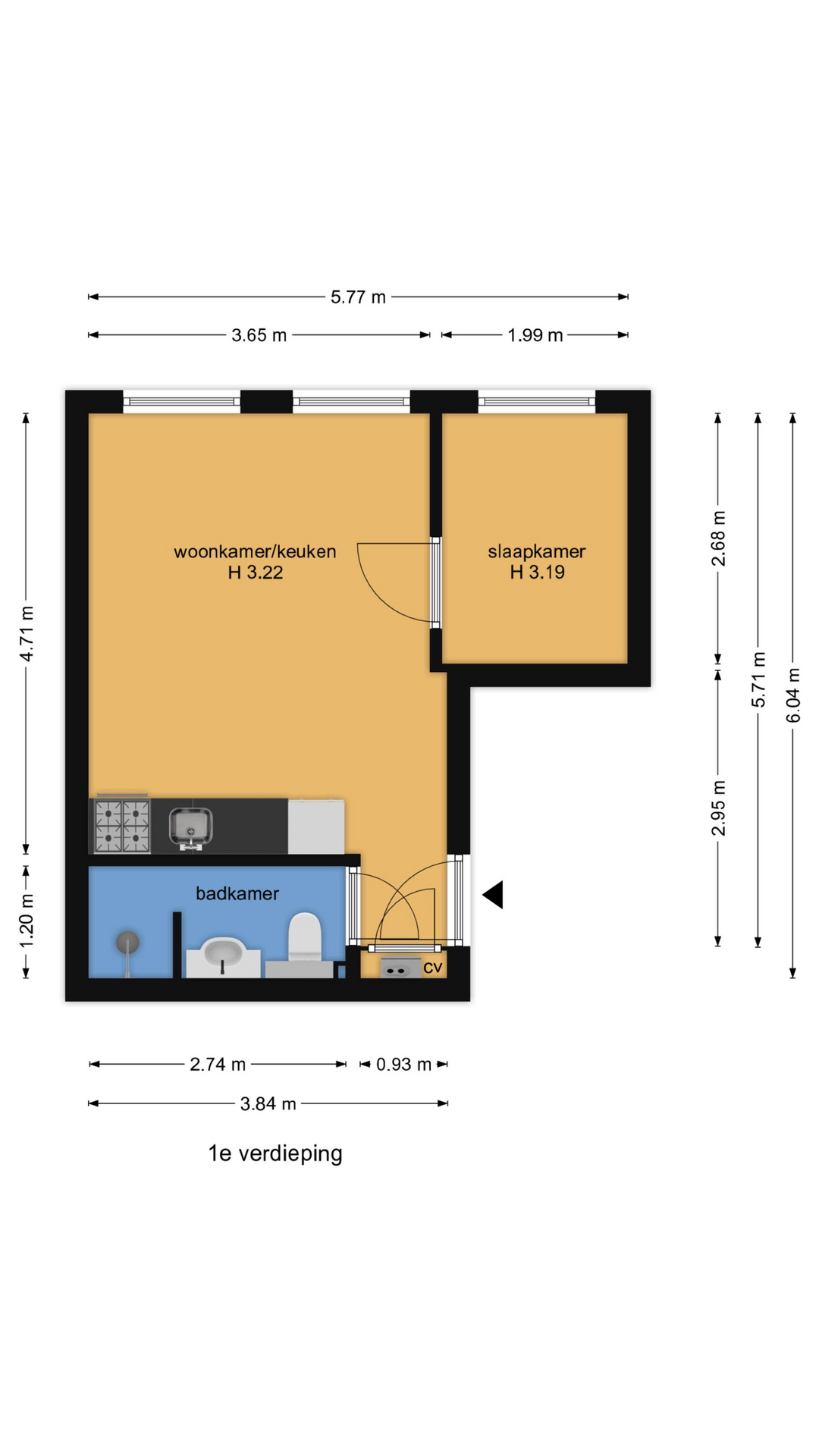
Indeling:
Gezamenlijke entree, trap naar de eerste etage, entree appartement, woonkamer met vrij uitzicht richting de Trompstraat, grote raampartijen met dubbel glas aan de voorzijde, moderne open keuken voorzien van gaskookplaat, wasemkap, gootsteen en koelkast. Vanuit de woonkamer de fraai betegelde badkamer voorzien van badkamermeubel met wastafel, wandcloset, handdoekradiator en inloopdouche. De slaapkamer is goed van formaat en gelegen aan de voorzijde van het gebouw.
Aanvullende informatie:
– ’s-Gravenhage sectie O nummer 8619 A-10
– Eigen grond
– Bouwjaar 1900
– Gemeentelijk beschermd stadsgezicht
– Woonoppervlak ca. 28 m²
– Energielabel A
– Volledig voorzien van dubbel glas
– Cv-combiketel Remeha 2017
– 7/82ste aandeel in actieve VvE
– Maandelijkse VvE-bijdrage € 72,45
– Collectieve opstalverzekering
– Voorbehoud splitsing van toepassing
– Algemene verkoopvoorwaarden Plink NVM Garantiemakelaars van toepassing
– Ouderdoms-, materialen- en niet-bewoningsclausule van toepassing
– Projectnotaris Ellens & Lentze
- 28 m2
- 1
Kenmerken Piet Heinstraat 16
Overdracht
| Vraagprijs | € 225.000,- k.k. |
|---|---|
| Aanvaarding | In overleg |
Oppervlaktes en inhoud
| Woonoppervlakte | 28 m2 |
|---|---|
| Inhoud | 110 m3 |
Bouw
| Soort | Bovenwoning |
|---|---|
| Bouwvorm | Bestaande bouw |
| Bouwjaar | 1900 |
| Isolatievormen | Dubbelglas |
| Energielabel | A |
Indeling
| Aantal verdiepingen | 1 |
|---|---|
| Aantal kamers | 2 |
| Aantal slaapkamers | 1 |
| Aantal badkamers | 1 |
Maandlasten
Ligging Piet Heinstraat 16
Voorzieningen
- Openbare Basisschool Max Velthuijs 516 m Da Costastraat 40 'S-GRAVENHAGE
- Hogeschool der Kunsten Den Haag 2 km Juliana van Stolberglaan 1 S-GRAVENHAGE
- ROC Mondriaan 2 km Leeghwaterplein 72 S-GRAVENHAGE
- Hogeschool der Kunsten Den Haag 2 km Juliana van Stolberglaan 1 S-GRAVENHAGE
- Technische Universiteit Delft 10 km Prometheusplein 1 DELFT
Centraal gelegen informatie over de buurt
Aantal inwoners
In de gemeente
524.882
Leeftijd
in percentages van totaal
Huishoudsamenstelling
in percentages van totaal
63%
20% NL
18%
20% NL
18%
20% NL