€ 799.500,- k.k.
Spectaculair high-end renovatieproject waarbij een schitterend 6-kamer dubbel bovenhuis compleet inwendig is gerenoveerd en is voorzien van dakterras met panoramisch uitzicht over Scheveningen. Het geheel is in 2024 voorzien van nieuw leidingwerk, nieuwe installaties, nieuwe luxe open keuken, stuc- en schilderwerk en twee luxe badkamers. De locatie in het historische Renbaankwartier is uitstekend te noemen en bovendien op kruipafstand van het strand van Scheveningen, de boulevard en diverse populaire winkelstraten.
Dankzij de aangebrachte energiebesparende voorzieningen beschikt deze stijlvolle woning over een gunstig energielabel A.
Indeling:
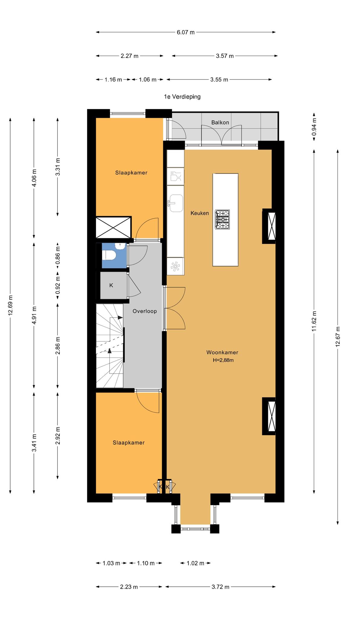
Trap naar de bel-etage, entree appartement, ruime hal met meterkast, trap naar de 1e etage overloop met apart toilet voorzien van fraai tegelwerk, wandtoilet en fonteintje. Zowel aan de voorzijde als aan de achterzijde is een zijkamer gesitueerd die zeer geschikt zijn als werkkamer. Vanuit de hal dubbele stalen deuren naar de woonkamer met zeer gunstige lichtinval, erker aan de voorzijde, luxe open keuken voorzien van kookeiland met natuurstenen werkblad, 4-pits inductiekookplaat met geïntegreerde afzuiging, combioven, koel-/vriescombinatie en vaatwasser.
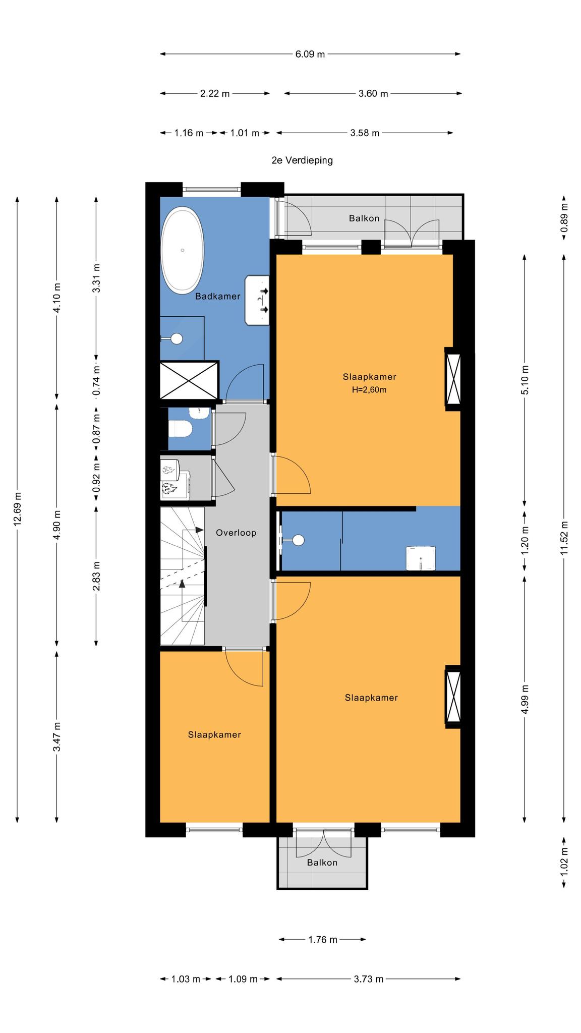
Vanuit de hal de trap naar de tweede etage, overloop met zijkamer aan de voorzijde, riante hoofdslaapkamer aan de achterzijde met balkon en eigen badkamer, riante slaapkamer aan de voorzijde eveneens met balkon en luxe badkamer met fraai vrijstaand ligbad, hoogwaardig tegelwerk, inloopdouche met glazen deur, handdoekradiator en badkamermeubel met wastafel. De eyecatcher van dit beeldschone appartement is het riante dakterras met vrij uitzicht over Scheveningen.
Aanvullende informatie:
– ’s-Gravenhage sectie AF nummer 3842 A-2
– Eigen grond
– Bouwjaar 1904
– Energielabel A
– Rijks beschermd stadsgezicht
– Woonoppervlak ca. 146 m²
– 1/2e aandeel in de VvE
– Maandelijkse VvE bijdrage € 126,-
– Collectieve opstalverzekering
– Cv-combiketel Intergas 2023
– Garantie op de uitgevoerde werkzaamheden (6 maanden)
– Ouderdoms- en niet-bewoningsclausule van toepassing
– Projectnotaris Rosenberg Polak
– Oplevering direct
- 146 m2
- 5
Kenmerken Katwijkstraat 133
Overdracht
| Vraagprijs | € 799.500,- k.k. |
|---|---|
| Aanvaarding | In overleg |
Oppervlaktes en inhoud
| Woonoppervlakte | 146 m2 |
|---|---|
| Inhoud | 504 m3 |
Bouw
| Soort | Bovenwoning |
|---|---|
| Bouwvorm | Bestaande bouw |
| Bouwjaar | 1904 |
| Dak type | Plat dak |
| Isolatievormen | Dubbelglas |
| Energielabel | A |
Indeling
| Aantal verdiepingen | 2 |
|---|---|
| Aantal kamers | 6 |
| Aantal slaapkamers | 5 |
| Aantal badkamers | 1 |
Maandlasten
Ligging Katwijkstraat 133
Voorzieningen
- Protestants Christelijke Basisschool De Vuurtoren 82 m Stevinstraat 65E 'S-GRAVENHAGE
- Hotelschool The Hague 662 m Brusselselaan 2 S-GRAVENHAGE
- ROC Mondriaan 4 km Koningin Marialaan 9 S-GRAVENHAGE
- Hotelschool The Hague 662 m Brusselselaan 2 S-GRAVENHAGE
- Technische Universiteit Delft 13 km Prometheusplein 1 DELFT
Centraal gelegen informatie over de buurt
Aantal inwoners
In de gemeente
524.882
Leeftijd
in percentages van totaal
Huishoudsamenstelling
in percentages van totaal
53%
20% NL
23%
20% NL
24%
20% NL