€ 895.000,- k.k.
In een monumentale gevelrij gelegen 8-kamer herenhuis met zeer riante maatvoering van ca. 229 m² woonoppervlak en voorzien van enorme living, vijf slaapkamers, drie badkamers, charmante aangebouwde serre, achtertuin op het zuidoosten, riant zonneterras van ca. 28 m², kelder en twee bergingen. Dit robuuste herenhuis is goed onderhouden, grotendeels voorzien van dubbele beglazing en bovendien gelegen op een uitstekende locatie nabij de gezellige winkels van de Fahrenheitstraat, openbaar vervoer en uitvalswegen.
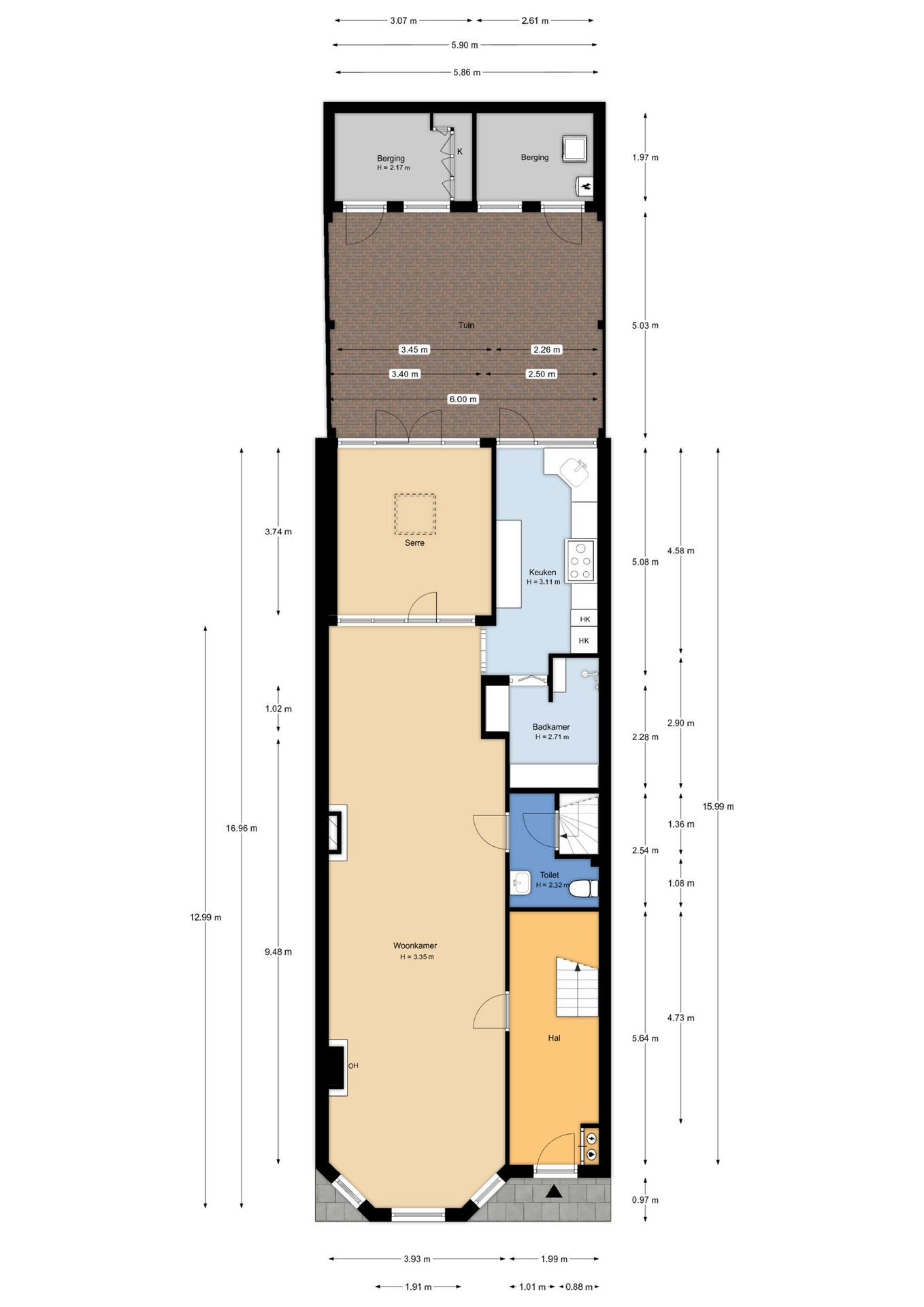
Indeling:
Entree/hal met marmeren vloer en ruimte voor twee fietsen onder de trap, meterkast voorzien van uitgebreide elektrische installatie, ruime woonkamer (voormalig en suite), massief eiken parketvloer, marmeren schouwen, gashaard, aangebouwde serre met gunstige lichtinval, fraaie originele glas in lood bovenramen en openslaande deuren naar achtertuin. Deze tuin van op het zuidoosten is voorzien van twee betegelde bergingen met verwarming en elektra. Voorts vanuit de woonkamer de halfopen keuken, voorzien van vloerverwarming, koel-/vriescombinatie, 5-pits rvs gaskookplaat, close-in boiler, rvs spoelbak en losse vaatwasser. De keuken geeft toegang naar een badkamer voorzien van douche en dubbele wastafel, die eventueel als bijkeuken gebruikt kan worden. Op de begane grond is verder een toilet met wastafel aanwezig, met de trap naar de kelder van ca. 10 m².
Trap naar 1e etage, overloop voorzien van toilet, voorzijkamer, ruime voorkamer met erker en ornamenten plafond dat toegang geeft naar een balkon, riante slaapkamer aan de achterzijde met ornamenten plafond, openslaande deuren naar zonneterras van ca. 28 m², met daarbij badkamer voorzien van ligbad, douche, dubbele wastafel, vaste kast en mechanische ventilatie.
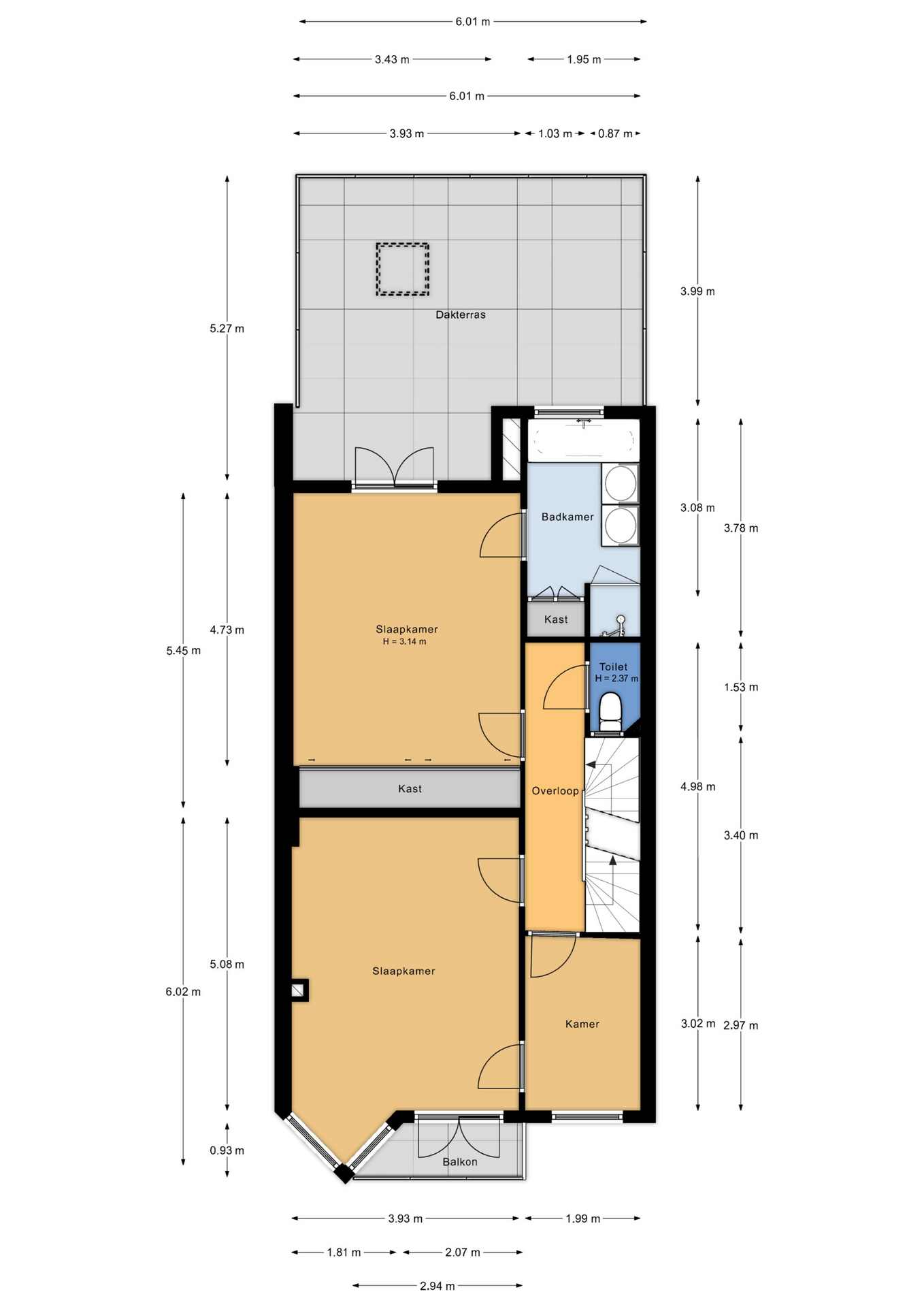
Trap naar 2e etage, overloop voorzien van daklicht, nis en toilet, slaapkamer aan de voorzijde met eigen douche en wastafel, derde badkamer in de voorzijkamer met hoogwaardig tegelwerk, douche en wastafel, ruime slaapkamer aan de achterzijde met twee vaste kasten en openslaande deuren naar balkon.
Aanvullende informatie:
– ’s-Gravenhage sectie AM 1381
– Eigen grond
– Bouwjaar 1907
– Groot 01 are 56 centiare
– Gemeentelijk beschermd stadsgezicht
– Kozijnen grotendeels voorzien van dubbel glas
– Voor- en achterzijde geschilderd in 2023 door erkend bedrijf (Joost Bakker)
– Cv-combiketel Nefit 2017
– Keuken en hal voorzien van vloerverwarming
– Bergingen in de tuin voorzien van opstelplaats voor wasmachine
– Ouderdoms- en materialenclausule van toepassing
– Algemene verkoopvoorwaarden Plink van toepassing
– Oplevering in overleg
- 229 m2
- 156 m2
- 5
Kenmerken Laan van Meerdervoort 392
Overdracht
| Vraagprijs | € 895.000,- k.k. |
|---|---|
| Aanvaarding | In overleg |
Oppervlaktes en inhoud
| Perceel oppervlakte | 156 m2 |
|---|---|
| Woonoppervlakte | 229 m2 |
| Inhoud | 920 m3 |
Bouw
| Soort | Herenhuis |
|---|---|
| Bouwvorm | Bestaande bouw |
| Bouwjaar | 1907 |
| Dak type | Plat dak |
| Isolatievormen | Grotendeels dubbelglas |
| Energielabel | F |
Indeling
| Aantal verdiepingen | 4 |
|---|---|
| Aantal kamers | 7 |
| Aantal slaapkamers | 5 |
| Aantal badkamers | 4 |
Maandlasten
Ligging Laan van Meerdervoort 392
Voorzieningen
- Chr. Basisschool De Elout 178 m Copernicusstraat 159 'S-GRAVENHAGE
- De Haagse Hogeschool 4 km Johanna Westerdijkplein 75 S-GRAVENHAGE
- ROC Mondriaan 3 km Zuidlarenstraat 6 S-GRAVENHAGE
- De Haagse Hogeschool 4 km Johanna Westerdijkplein 75 S-GRAVENHAGE
- Technische Universiteit Delft 11 km Prometheusplein 1 DELFT
Centraal gelegen informatie over de buurt
Aantal inwoners
In de gemeente
524.882
Leeftijd
in percentages van totaal
Huishoudsamenstelling
in percentages van totaal
53%
20% NL
21%
20% NL
26%
20% NL